본문 바로가기
CONTACT US|ENGLISH

유압툴 & 시스템

센타홀 실린더 - ESCH(EDCH) 시리즈

  • · 용량 : 5 -100 ton

    · 스트로크 : 50 -250 mm

    · 최대압력 : 700 bar

    · ESCH : 단동식 & 스프링 리턴 타입

    · EDCH : 복동식 & 유압 리턴 타입

    · 커플러 포트 : PT 3/8

    · 알루미늄 튜브 적용 가능(옵션)

    · 기타 사이즈 제작 가능(옵션)

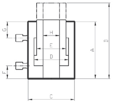
모델 번호 타입 용량 (ton) 스트로크 (mm) 오일 용량 (cc) 유효 면적
(cm2)
기본 높이
A (mm)
연장 높이
B (mm)
외경 C (mm) 내경 D (mm) 로드직경
E (mm)
전진포트
~ 바닥면
F (mm)
후진포트
~ 상단부
G (mm)
센타홀
직경 H (mm)
무게 (kg)
ESCH-1050 단동식 10 50 88 176 130 180 75 55 38 26 - 20 3.4
ESCH-2015 20 15 49 32.8 130 145 105 75 55 33 - 27 3.2
ESCH-2050 20 50 164 32.8 165 215 105 75 55 33 - 27 5
ESCH-2075 20 75 246 32.8 190 265 105 75 55 33 - 27 7
* ESCH-20150 20 150 75 55 33 -
ESCH-3060 30 60 286 47.7 180 240 115 90 63 21 - 37 12
* ESCH-30150 30 150 90 63 21 -
ESCH-5075 50 75 530 70.7 238 313 159 115 85 30 - 54 28
ESCH-6075 60 75 671 89.5 238 313 169 125 85 30 - 54 38
* ESCH-60150 60 150 125 85 30 -
ESCH-10075 100 75 1155 154 268 343 218 175 140 45 - 80 59
EDCH-2075 복동식 20 75 246 32.8 195 270 105 75 55 33 50 27 11
EDCH-3060 30 60 392 65.3 223 283 158 105 80 50 60 37 32
EDCH-30150 30 150 980 65.3 313 463 158 105 80 50 60 37 42
EDCH-30260 30 260 1698 65.3 423 683 158 105 80 50 60 37 55
EDCH-6090 60 90 990 110 329 419 165 135 95 55 75 54 38
EDCH-60130 60 130 1430 110 369 499 165 135 95 55 75 54 42
EDCH-60260 60 260 2860 110 499 759 165 135 95 55 75 54 54
EDCH-10040 100 40 582 145.5 286 326 227 175 150 65 86 80 77
EDCH-100150 100 150 2183 145.5 396 546 227 175 150 65 86 80 107
EDCH-100260 100 260 3783 145.5 506 766 227 175 150 65 86 80 138
EDCH-150200 150 200 4206 210.3 475 675 270 200 160 75 90 85 162
* 본사 확인 요망
    
개인정보취급방침|이용약관|이메일무단수집거부

회사명 : 한국유수압| 브랜드명 : ENPOS| 대표자 : 설철수| 본사 & 공장 : 부산광역시 강서구 녹산산단 289로 37 (송정동)| 전화번호 : 051-832-1100| 팩스 : 051-832-1110| E-mail : enpos@enpos.co.kr

© 2013 by KOREA HYDRAULIC CO. All Rights Reserved.