본문 바로가기
CONTACT US|ENGLISH

유압툴 & 시스템

치구용 실린더 - ELPR 시리즈 / 컴팩트 실린더 - ECPR 시리즈

  • 적용 가능 제품

    당사의 치구용 실린더와 컴팩트 실린더는 낮은 간격에서
    리프팅 시 최선의 선택이 될 것입니다.

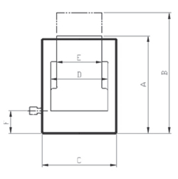
  • 치구용 실린더 - ELPR 시리즈

    · 용량 : 5 -150 ton

    · 스트로크 : 6 -30 mm

    · 최대압력 : 700 bar

    · 커플러 포트 : PT 3/8

    · 마운팅홀 옵션제작 가능


모델 번호 용량 (ton) 스트로크 (mm) 오일 용량 (cc) 유효 면적
(cm2)
기본 높이
A (mm)
연장 높이
B (mm)
외경 C (mm) 내경 D (mm) 로드직경
E (mm)
포트~바닥면
F (mm)
볼트 서클
G (mm)
구멍 직경
H (mm)
무게 (kg)
ELPR-506 5 6 47.1 48 54 59 30 25 17 28 5 0.8
ELPR-515 5 15 117.1 57 72 59 30 25 17 28 5 1
ELPR-1012 10 12 1815.2 53 65 85 44 36 18 37 7 1.6
ELPR-1030 10 30 4615.2 71 101 85 44 36 18 37 7 2.1
ELPR-2012 20 12 3428.3 58 70 98 60 50 18 49 9 2.9
ELPR-3013 30 13 5844.2 59 72 117 75 63 18 55 14 4
ELPR-3030 30 30 13344.2 76 106 117 75 63 18 55 14 5
ELPR-5015 50 15 10670.9 67 82 145 95 80 18 65 14 6.5
ELPR-5030 50 30 21370.9 82 112 145 95 80 18 65 14 8
ELPR-10015 100 15 215143.1 95 110 190 135 120 20 106 14 19
ELPR-15015 150 15 321213.7 100 115 217 165 135 28 117 14 25
  • 컴팩트 실린더는 주로 조선소에서 많이 사용됩니다.

    컴팩트 실린더 - ECPR 시리즈

    · 용량 : 10 -100 ton

    · 스트로크 : 35 -50 mm

    · 최대압력 : 700 bar

    · 단동식 & 스프링 리턴 타입

    · 커플러 포트 : PT 3/8

    · 튜브 : SCM440

    · 기타 사이즈 제작 가능(옵션)

모델 번호 스트로크 (mm) 오일 용량 (cc) 유효 면적
(cm2)
기본 높이
A (mm)
연장 높이
B (mm)
외경 C (mm) 내경 D (mm) 로드직경
E (mm)
포트~바닥면
F (mm)
무게 (kg) 용량 (ton)
ECPR-1035 35 56 15.9 113 148 63 45 38 20 2.4 10
ECPR-1050 50 80 15.9 128 178 63 45 38 20 2.7 10
ECPR-2050 50 156 31.2 128 178 88 63 50 20 5 20
ECPR-3050 50 221 44.2 140 190 98 75 65 21 7 30
ECPR-5050 50 354 70.8 150 200 125 95 80 24 12 50
ECPR-10050 50 716 143.1 185 235 178 135 110 35 39 100
    
개인정보취급방침|이용약관|이메일무단수집거부

회사명 : 한국유수압| 브랜드명 : ENPOS| 대표자 : 설철수| 본사 & 공장 : 부산광역시 강서구 녹산산단 289로 37 (송정동)| 전화번호 : 051-832-1100| 팩스 : 051-832-1110| E-mail : enpos@enpos.co.kr

© 2013 by KOREA HYDRAULIC CO. All Rights Reserved.